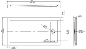
Cette base de douche rectangulaire blanche est conçue pour une installation en coin ou en alcôve. Mesurant 32″ x 60″, ALEKA-LI est fabriquée en acrylique renforcé de fibre de verre et comprend deux rebords de carrelage intégrés en acrylique pour faciliter l’installation. Complétez votre nouvelle douche en ajoutant des portes vitrées disponibles dans notre sélection !


